Views: 50 Author: kerry Publish Time: 2025-12-02 Origin: https://www.echardwarechina.com/
UL listed for 3 hour fire rated Universal Automatic Flush Bolts
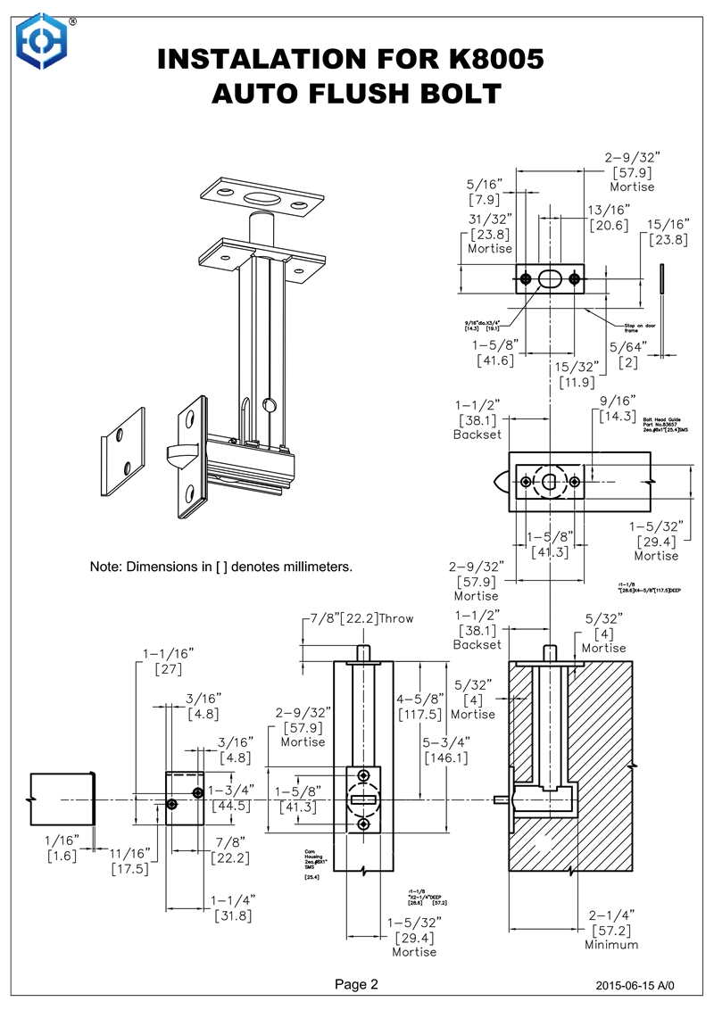
Genaral Information:
The K8005 Automatic Flush Bolt uses a standard latch bolt prep fixture with 1-1/8"[28.6]diameter drill bit.For beveled doors,the face of the K8005 pivots,making the bolt suitable for all door edges.
Trouble Shooting:
Maintenance Tips:
1)1.If the operation is stiff or the cam sticks,the drilled holes are not quite perpendicular and/or do not meet adequately.In this case,it may be necessary to break the inside edge of the intersecting holes with a smaller drill,or a round file.
2)If breaking the edge does not improve operation check to see that the two assemblies are mated correctly as stated in Step 2 of the installation instructions.
The K8005 will provide years of trouble free operation.Periodic greasing with a moly or lithium based grease will extend the life of the K8005.
Preparation Tips:
1.Do not exceed 5/32"[4]depth when mortising the two rectangles.
Greater depths will hinder the mating of the two assemblies.
2.The 1-1/8"[28.6]holes must be drilled perpendicular to the door edges
as well as parallel with the door faces.
3.Undercut Doors:
3.1 Prep are top bolt as suggested.
3.2 Prep only vertical mortise of bottom bolt.
3.3 Undercut door to required amount.
3.4 Redrill vertical mortise the same amount as undercut.
3.5 Prep horizontal mortise per template.
Bolt Installation:
1.Remove Tie and install Bolt Housing.
2.Install Cam Housing into grooves of Bolt Housing.Secure Trim Plate
with 2 ea.#8 APS.
Note:If Cam Housing rotates,it is not engaged into the Bolt Housing.
3.Adjust Bolt Head 0"to 1/2"[12.7]above Bolt Head Guide.Secure with
2 ea.#8 APS.
In order to make our products more competitive and enhance customers confidence, we have obtained the following product quality certifications:
UL Certificated R41359 and CE for door closer,
UL Certificated R41361 ,SA46258 for panic exit device,
UL Certificated R41383 and EN1935:2002 for Hinges,
UL Certificated R41710 for American and lock,
CE for Mortise lock,
EN1906:2012 for Handles,
EN12209:2016 for Locks and so on.
